首页
关于我们
产品中心
防护设备
通风设备
其他配件
资质荣誉
工程业绩
新闻资讯
联系我们
中国建筑标准设计研究院设计产品
当前位置:
钢结构防护设备
钢筋混凝土防护设备
悬板式防爆波活门、临战封堵
双扇无门槛钢结构防护密闭门
双扇无门槛钢结构密闭门
{item.title}
单扇固定门槛钢筋混凝土防护密闭门
单扇活门槛钢筋混凝土防护密闭门
双扇固定门槛钢筋混凝土防护密闭门
双扇活门槛钢筋混凝土防护密闭门
单扇固定门槛钢筋混凝土密闭门
单扇活门槛钢筋混凝土密闭门
双扇固定门槛钢筋混凝土密闭门
双扇活门槛钢筋混凝土密闭门
悬板式防爆波活门
相邻防护单元隔墙孔口型钢临战封堵
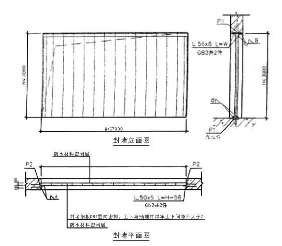
平时出入口型钢竖向(横向)临战封堵
首页
关于我们
产品中心
防护设备
通风设备
其他配件
资质荣誉
工程业绩
新闻资讯
联系我们