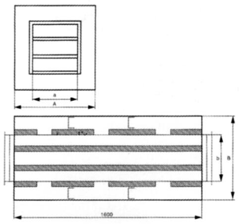
阻抗消声器

阻抗消声器

用途:它是一种方频消声器,广泛用于空调系统中降低中低压风机噪声

结构和材质:

1、消声器外壳用1毫米钢板或镀锌板制作。

2、内壁用0.8毫米钢板或镀锌板制作成微孔板,孔径为6毫米。

3、空腔内填超细玻璃棉。

产品咨询:0351-3051360
产品描述

阻抗消声器2.jpg

下一页:消声器
产品询价
在线留言